亚洲乱码卡一卡二卡芒果-国产美女被遭高潮免费-岛国精品一区免费视频在线-国产三级精品三级在线专区1

歡迎光臨派沃爾閥門-上海歐儀實業有限公司官方網站:

大家都在搜:T&P派沃爾閥門、美國博雷閥門(Bray)、德國蓋米閥門(GEMU)、美國ASCO電磁閥 、英國羅托克(ROTORK)

調節閥類 UPVC閥門 電動控制調節球閥 氣動控制球閥 蝶閥

當前位置: 首頁 » 產品中心 » T&P派沃爾閥門 » 派沃爾球閥 » 法蘭球閥 » 派沃爾 歐儀----氣動調節型法蘭球閥

派沃爾 歐儀----氣動調節型法蘭球閥

產品介紹技術參數

產品名稱:氣動調節型法蘭球閥

氣動調節球閥是一種轉角為90°的旋轉類球閥,采用角行程氣動執行器及球閥組成。是在引進國外先進技術的基礎上進行特殊設計、精心制造的產品。氣動調節球閥采用智能控制與定位,與電氣閥門定位器配套,輸入4~20mADC信號及0.4~0.7MPa氣源即可控制運轉,實現對壓力、流量、溫度、液位等參數的調節。氣動調節球閥是以壓縮空氣為動力,閥桿帶動閥芯在閥體內轉動90°可以實現全開—全閉的動作。氣動調節球閥按其密封性能分為金屬密封與軟密封。具有結構緊湊、體積精小、運行可靠、密封性好、維修容易、安裝方便、適應性強等優點。特別適合于介質是粘稠、含顆粒、纖維性質的場合。氣動調節球閥廣泛應用于石油、化工、教學設備、輕工、高壓設備、制藥、造紙等工業自動控制系統中,作遠距離集中控制或就地控制。

 

氣動調節球閥 閥體

閥體形式直通鑄造球型閥
公稱通徑DN15~300mm
公稱壓力PN1.6、2.5、4.0、6.4 MPa;ANSI 150、300LB ;JIS 10、20、30K
法蘭標準JIS、ANSI、GB、JB、HG等
連接形式法蘭式、焊接式、螺紋式
閥蓋形式整體式
壓蓋型式螺栓壓緊式
密封填料V型聚四氟乙烯填料、含浸聚四氟乙烯填料、石棉編織填料、柔性石墨

氣動調節球閥 閥內件

閥芯形式O型球體閥芯
流量特性快開特性

氣動調節球閥 執行機構

執行器型號GT、SR、ST、AT、AW系列單雙作用氣動執行器
供氣壓力0.4~0.7MPa
氣源接口G1/4"、G1/8"、G3/8"、G1/2"
環境溫度-30~+70℃
作用形式單作用執行機構:氣關式(B)--失氣時閥位開(FO);氣開式(K)--失氣時閥位關(FC)
雙作用執行機構:氣關式(B)--失氣時閥位保持(FL);氣開式(K)-- 失氣時閥位保持(FL)
可配附件定位器、電磁閥、空氣過濾減壓器、保位閥、行程開關、閥位傳送器、手輪機構等

注:如需詳細執行器參數,請進入氣動執行器頁面進行查閱。

 

氣動調節球閥 主要性能指標

公稱通徑 DN(mm)1520253240506580100125150200250300
額定流量系數KV21387211217027338451294014522222358951287359
允許壓差(MPa)≤ 公稱壓力
動作范圍0~90°
泄露量Q軟密封為零泄露;金屬密封符合ANSI B16.104 IV級標準
基本誤差帶定位器:小于全行程的±2%
回差帶定位器:小于全行程的2%

氣動調節球閥 主要性能規范

試驗壓力(MPa)公稱壓力(MPa)壓力級(class)JIS(K)
1.62.54.06.410.015030060010K20K
強度試驗2.43.756.09.615.03.07.516.52.43.8
密封試驗1.762.754.47.0411.02.25.512.11.52.8
氣密試驗0.5~0.7MPa

 

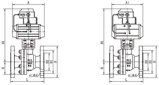
氣動調節球閥 外形尺寸

undefined

公稱通徑 DN(mm)1520253240506580100125150200250300
L130140150165180200220250280320360400630750
H44.549556565759095115127140172.5310350
H1根據所配執行機構而定
D95105115140150165185200220250285340405460
D1657585100110125145160180210240295355410
D2465665768499118132156184211266319370
n-φd4-144-144-144-184-184-184-188-188-188-188-2212-2212-2612-26
A、A1根據閥門所需力矩而定,配置機型不同,外形尺寸也不相同

注:以上參數均以國標PN1.6MPa為準,其他壓力等級請咨詢公司技術部,表中尺寸為不帶標準附件數據,另由于產品改進技術創新參數可能有一定變化,請咨詢公司技術部門索取最新數據。



氣動調節球閥 閥體

閥體形式直通鑄造球型閥
公稱通徑DN15~300mm
公稱壓力PN1.6、2.5、4.0、6.4 MPa;ANSI 150、300LB ;JIS 10、20、30K
法蘭標準JIS、ANSI、GB、JB、HG等
連接形式法蘭式、焊接式、螺紋式
閥蓋形式整體式
壓蓋型式螺栓壓緊式
密封填料V型聚四氟乙烯填料、含浸聚四氟乙烯填料、石棉編織填料、柔性石墨

氣動調節球閥 閥內件

閥芯形式O型球體閥芯
流量特性快開特性

氣動調節球閥 執行機構

執行器型號GT、SR、ST、AT、AW系列單雙作用氣動執行器
供氣壓力0.4~0.7MPa
氣源接口G1/4"、G1/8"、G3/8"、G1/2"
環境溫度-30~+70℃
作用形式單作用執行機構:氣關式(B)--失氣時閥位開(FO);氣開式(K)--失氣時閥位關(FC)
雙作用執行機構:氣關式(B)--失氣時閥位保持(FL);氣開式(K)-- 失氣時閥位保持(FL)
可配附件定位器、電磁閥、空氣過濾減壓器、保位閥、行程開關、閥位傳送器、手輪機構等

注:如需詳細執行器參數,請進入氣動執行器頁面進行查閱。

 

氣動調節球閥 主要性能指標

公稱通徑 DN(mm)1520253240506580100125150200250300
額定流量系數KV21387211217027338451294014522222358951287359
允許壓差(MPa)≤ 公稱壓力
動作范圍0~90°
泄露量Q軟密封為零泄露;金屬密封符合ANSI B16.104 IV級標準
基本誤差帶定位器:小于全行程的±2%
回差帶定位器:小于全行程的2%

氣動調節球閥 主要性能規范

試驗壓力(MPa)公稱壓力(MPa)壓力級(class)JIS(K)
1.62.54.06.410.015030060010K20K
強度試驗2.43.756.09.615.03.07.516.52.43.8
密封試驗1.762.754.47.0411.02.25.512.11.52.8
氣密試驗0.5~0.7MPa

 

氣動調節球閥 外形尺寸

undefined

公稱通徑 DN(mm)1520253240506580100125150200250300
L130140150165180200220250280320360400630750
H44.549556565759095115127140172.5310350
H1根據所配執行機構而定
D95105115140150165185200220250285340405460
D1657585100110125145160180210240295355410
D2465665768499118132156184211266319370
n-φd4-144-144-144-184-184-184-188-188-188-188-2212-2212-2612-26
A、A1根據閥門所需力矩而定,配置機型不同,外形尺寸也不相同

注:以上參數均以國標PN1.6MPa為準,其他壓力等級請咨詢公司技術部,表中尺寸為不帶標準附件數據,另由于產品改進技術創新參數可能有一定變化,請咨詢公司技術部門索取最新數據。



如果您想對本產品的報價或進一步的資料,請填寫以下表格。

產品名稱

您的姓名

電話號碼 *

E-mail *

留言內容 *

驗證碼 *

新聞中心
聯系我們
熱線:
021-61250946  61250905 61250945

手機:13671770016

   18521512599